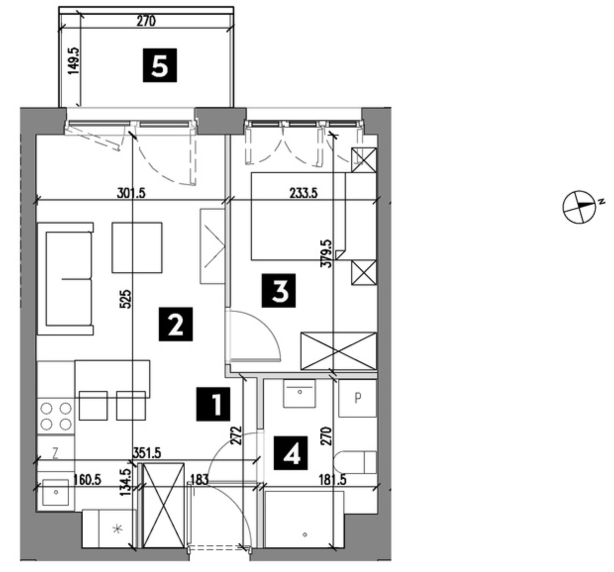
Mieszkanie

B1 – B1/3/4

3 Piętro
|
2 Pokoje
wolne
cena całkowita:
502 446,00 ZŁ
cena za m2:
14 700 ZŁ/M2
Korytarz
4,06
Pokój dzienny + ans.kuch.
16,65
Sypialnia
8,86
Łazienka
4,61
Powierzchnia
34.18 M 2
Balkon
4,04
Inne świadczenia pieniężne na rzecz dewelopera:
Od dnia odbioru lokalu do dnia zawarcia umowy przenoszącej własność Nabywca będzie zobowiązany do ponoszenia kosztów eksploatacyjnych związanych z korzystaniem z lokalu oraz nieruchomości wspólnej.

Wybierz dodatkowe opcje dla swojego nowego mieszkania

(poniższe opcje są dodatkowe i nieobowiązkowe, ich dostępność zależy od etapu budowy mieszkania, szczegóły u doradców)

Wykończenie tarasów

Deski kompozytowe

Taras 2×2 m lub 4×4 m wykonany z desek kompozytowych firmy PRYMUS, kolory GOLD OAK, TJ, ORZECH nieszczotkowany.*

Płyty betonowe quarto

Taras wykonany z płyt betonowych wg wyboru i konfiguracji klienta, 35×35 cm, gr. 5cm, QUATTRO BETARD kolor szary.*

Klimatyzacja

PREMIUM

Kolor czarny, sterowanie pilotem lub telefonem, jednostki kompatybilne z systemem smart home, montaż w salonie lub salonie i sypialni.

BASIC

Kolor biały, sterowanie pilotem lub telefonem, jednostki kompatybilne z systemem smart home, montaż w salonie lub salonie i sypialni.

Wyprowadzenie przewodów

Wyprowadzenie przewodów w miejsce przyszłych jednostek klimatyzacji. Instalacja bez jednostek i czynnika w instalacji.

Rolety

Rolety pionowe elektryczne

Kolor dopasowany do stolarki okiennej, silniki zwykłe elektryczne np. PORTOS, dostępne 4 rodzaje sterowania – więcej informacji u doradców.*

Kaseta na rolety

Montaż kaset pod przyszłe umiejscowienie rolet z cofniętym nadprożu w warstwie izolacji termicznej elewacji budynku.

Videomofon

Model PREMIUM

Videomofon PREMIUM VEO – XL FERMAX WIFII

Model BASIC

Videomofon firmy FERMAX VEO-XS WIFII

Dodatkowa przestrzeń

Komórka lokatorska

Dodatkowa przestrzeń do przechowywania na piętrach lub w hali garażowej.

Miejsce garażowe

Prywatne miejsce postojowe w hali garażowej, możliwość wyboru miejsca pojedynczego lub podwójnego.

Wykończenie pod klucz

Pakiet PLUS

Duży wybór płytek wielkoformatowych o rektyfikowanym wykończeniu. Kolekcje tworzą najnowsze trendy.

Pakiet FORMA

Serie płytek bogate w różnorodne dekory i wzory. Formaty kafli są większe, w większości posiadają rektyfikowane wykończenie.

Pakiet START

Podstawowa opcja. Kolekcje płytek o niewielkich formatach w neutralnych kolorach.

Udogodnienia dodatkowe

Gładzie

Gładzie ścian w lokalu z wykonaniem połączeń.*

Inteligentny zamek

W zestawie zamek Tedee GO Gerda, bridge i akcesoria, interfejs Bluetooth, wkładka do samodzielnego montażu.*

Ogrzewanie podłogowe

W zestawie pompa obiegowa w lokalu, instalacja, sterowniki naścienne.

Smart Home

System typu F&home lub podobny (kablowo-radiowy), zawiera sterowanie roletami w oknach fasadowych, oświetleniem, klimatyzacją i alarmem SATEL, sterowanie zdalne.

* Zastrzegamy możliwość zmiany producenta w przypadku braku dostępności produktu. Parametry i funkcje w każdym przypadku zostaną zachowane. Aktualna oferta dostępna jest u naszych doradców: doradcy@inkomsa.pl
Kliknij na miejsce, aby zobaczyć szczegóły.

Lista komórek lokatorskich

NUMER
B1 – B1/1/16
Status
WOLNE
Powierzchnia
2,51 m2
Cena całkowita
10 040 ZŁ
Cena za m2
4 000 ZŁ/M2
Ceny historyczne
Sprawdź
NUMER
B1 – B1/2/16
Status
WOLNE
Powierzchnia
2,51 m2
Cena całkowita
10 040 ZŁ
Cena za m2
4 000 ZŁ/M2
Ceny historyczne
Sprawdź
NUMER
B1 – B1/3/16
Status
WOLNE
Powierzchnia
2,51 m2
Cena całkowita
10 040 ZŁ
Cena za m2
4 000 ZŁ/M2
Ceny historyczne
Sprawdź
NUMER
B1 – B1/4/16
Status
WOLNE
Powierzchnia
2,51 m2
Cena całkowita
10 040 ZŁ
Cena za m2
4 000 ZŁ/M2
Ceny historyczne
Sprawdź
NUMER
B1 – B1/5/16
Status
WOLNE
Powierzchnia
2,51 m2
Cena całkowita
10 040 ZŁ
Cena za m2
4 000 ZŁ/M2
Ceny historyczne
Sprawdź
NUMER
B2 – B2/1/8
Status
WOLNE
Powierzchnia
3,74 m2
Cena całkowita
14 960 ZŁ
Cena za m2
4 000 ZŁ/M2
Ceny historyczne
Sprawdź
NUMER
B2 – B2/2/8
Status
WOLNE
Powierzchnia
3,74 m2
Cena całkowita
14 960 ZŁ
Cena za m2
4 000 ZŁ/M2
Ceny historyczne
Sprawdź
NUMER
B2 – B2/3/8
Status
WOLNE
Powierzchnia
3,74 m2
Cena całkowita
14 960 ZŁ
Cena za m2
4 000 ZŁ/M2
Ceny historyczne
Sprawdź
NUMER
B2 – B2/5/8
Status
WOLNE
Powierzchnia
3,74 m2
Cena całkowita
14 960 ZŁ
Cena za m2
4 000 ZŁ/M2
Ceny historyczne
Sprawdź
NUMER
B1 – B1/-01/19
Status
WOLNE
Powierzchnia
6,12 m2
Cena całkowita
18 360 ZŁ
Cena za m2
3 000 ZŁ/M2
Ceny historyczne
Sprawdź
NUMER
B2 – B2/-01/06
Status
WOLNE
Powierzchnia
2,68 m2
Cena całkowita
8 040 ZŁ
Cena za m2
3 000 ZŁ/M2
Ceny historyczne
Sprawdź
NUMER
B2 – B2/-01/23
Status
WOLNE
Powierzchnia
3,58 m2
Cena całkowita
10 740 ZŁ
Cena za m2
3 000 ZŁ/M2
Ceny historyczne
Sprawdź
NUMER
B2 – B2/4/8
Status
REZERWACJA
Powierzchnia
3,74 m2
Cena całkowita
14 960 ZŁ
Cena za m2
4 000 ZŁ/M2
Ceny historyczne
Sprawdź

Historia cen

Data Cena przed Cena po Cena za m² przed Cena za m² po
2026-03-16 13:47 502 446,00 zł 14 700 zł
Zgoda RODO*
Zgoda Inwestycje
Zgoda RODO*
Zgoda Inwestycje
Zgoda RODO*
Zgoda Inwestycje
Zgoda RODO*
Zgoda Inwestycje
Zgoda RODO*
Zgoda Inwestycje